Guide d’achat Voile 2026

De 55 à 60 pieds

Cette catégorie, qui symbolisait le luxe ultime il y a à peine 10 ans avec quelques rares modèles semi-custom, compte aujourd’hui plus de 20 multicoques – dont certains sont déjà des best-sellers. Ces catamarans (surtout) et ces quelques trimarans offrent tous un confort absolu pour une vie à bord sans limite de durée. En revanche, ils deviennent plus exigeants à mener pour un équipage d’amateurs éclairés – confier ces unités à des skippers professionnels est donc recommandé.

Dazcat Ocean Cruiser 55

Conçu et construit par des marins, pour des marins

 
 
NEW
Le constructeur basé en Cornouailles a recentré son offre de 13 à 17 mètres et a lancé la gamme Dazcat Ocean Cruiser (DOC) avec un premier modèle annoncé, le 55. Ce Dazcat présente comme principale caractéristique d’adopter un cockpit/poste de manœuvre avant et la barre à roue mobile juste derrière, sur la face frontale de la nacelle. Un autre poste de barre est opérationnel à mi-hauteur sur tribord. Il tient un devis de poids serré, des masses soigneusement centrées, et permet l’échouage grâce à des appendices peu profonds quand ils sont relevés (dérives carbone). Quant au bimini, il a été étudié pour optimiser la surface des panneaux solaires, lesquels recouvrent également largement l’annexe sur ces bossoirs – l’Ocean Cruiser, en option, pourra être propulsé par un système hybride diesel/électrique.

Constructeur : Multihull Centre
Longueur hors-tout : 16,76 m
Largeur : 8,00 m
Déplacement : 12 t
Surface de voile : 151 m2
Motorisation : 2 x 40 ch ou hybride
www.multihullcentre.com

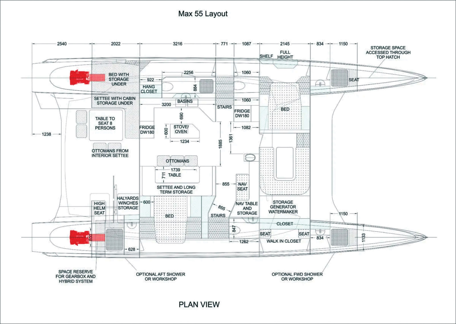
Max 55SC

Performances et motorisation hybride

 
 
Forever Green
Le flagship de la gamme Max Cruise Marine se veut performant grâce à un devis de poids contenu à seulement 12 tonnes grâce à une construction en composites très soignée selon le procédé de l’infusion. Le ratio voilure/poids s’établit ainsi à 12,29 m2/t, ce qui est très favorable à la vélocité par petit temps. Face aux vagues, la nacelle est bien défendue puisqu’elle se trouve à 0,9 m au-dessus de la surface. En standard, le 55SC est doté de quillons mais des dérives sabre sont disponibles en option. Quant aux aménagements, ils peuvent être personnalisés selon les desideratas des Propriétaires. La propulsion hybride a déjà fait ses preuves : un Max 55SC a traversé l’Océan Pacifique sans avoir besoin de refueler.
Constructeur : Max Cruise Marine
Longueur : 16,80 m
Longueur à la flottaison : 16,60 m
Largeur : 8,50 m
Tirant d’eau (quillons) : 1,40 m
Déplacement : 12 t
Surface de voile : 146,62 m2
Prix : 1 054 500 € HT
www.maxcruisemarine.com

Knysna 550

Bien plus moderne que ses prédécesseurs

 
 
NEW
Le nouveau Knysna 550 est une excellente surprise, avec un dessin de rouf très soigné avec ses montants arrière inclinés et colorés et ses hublots faciaux inversés. Les coques sont fines mais bien défendues à l’avant et dispensent une belle surface vitrée aux cabines. Sur les premières vues 3D de ce 550, on peut toutefois deviner le bon vieux rail de fargue en alu ajouré qui ceinture déjà le Knysna 500SE – quand on ne jure avant tout que par le rustique et costaud, même après quatre ans de développement en interne, on ne se refait pas !

Constructeur : Knysna Yachts
Longueur : 16,83 m
Largeur : 9,06 m
Tirant d’eau : 1,50 m
Déplacement : 19,6 t
Grand-voile : 133,8 m2
Génois : 62,64 m2
Motorisation : 2 x 80 ch
Carburant : 1 000 l
www.knysnayachtco.com

Swisscat ...

Se connecter

Mot de passe oublié ?

S'abonner

Abonnez-vous à Multicoques Mag et profitez de nombreux avantages !

Abonnez-Vous

Articles les plus lus dans cette catégorie

Voir tous les articles

Numéro en cours

MM234 - décembre 2025 - janvier 2026

Découvrir le numéro

Abonnez-vous

Toute l'actualité à partir de 3€ / mois

S'abonner au magazine

La vidéo du mois

Notre dernier hit YouTube!

Regarder la vidéo

Le Multihull of the Year

Les vainqueurs 2025

Découvrez les vainqueurs 2025
pour vos achats, consultez

Les petites annonces

Toutes les annonces
Catana 50 OC
Visible :
Antilles Françaises, France
1 200 000,00 ht€
GRAND SUD 45
Visible :
FORT DE FRANCE, France
Année :
1992
125 000,00 ttc€